The Avalon II

Home type: Duplex

3 Bed 2.5 Bath 1498 square feet

Home Model

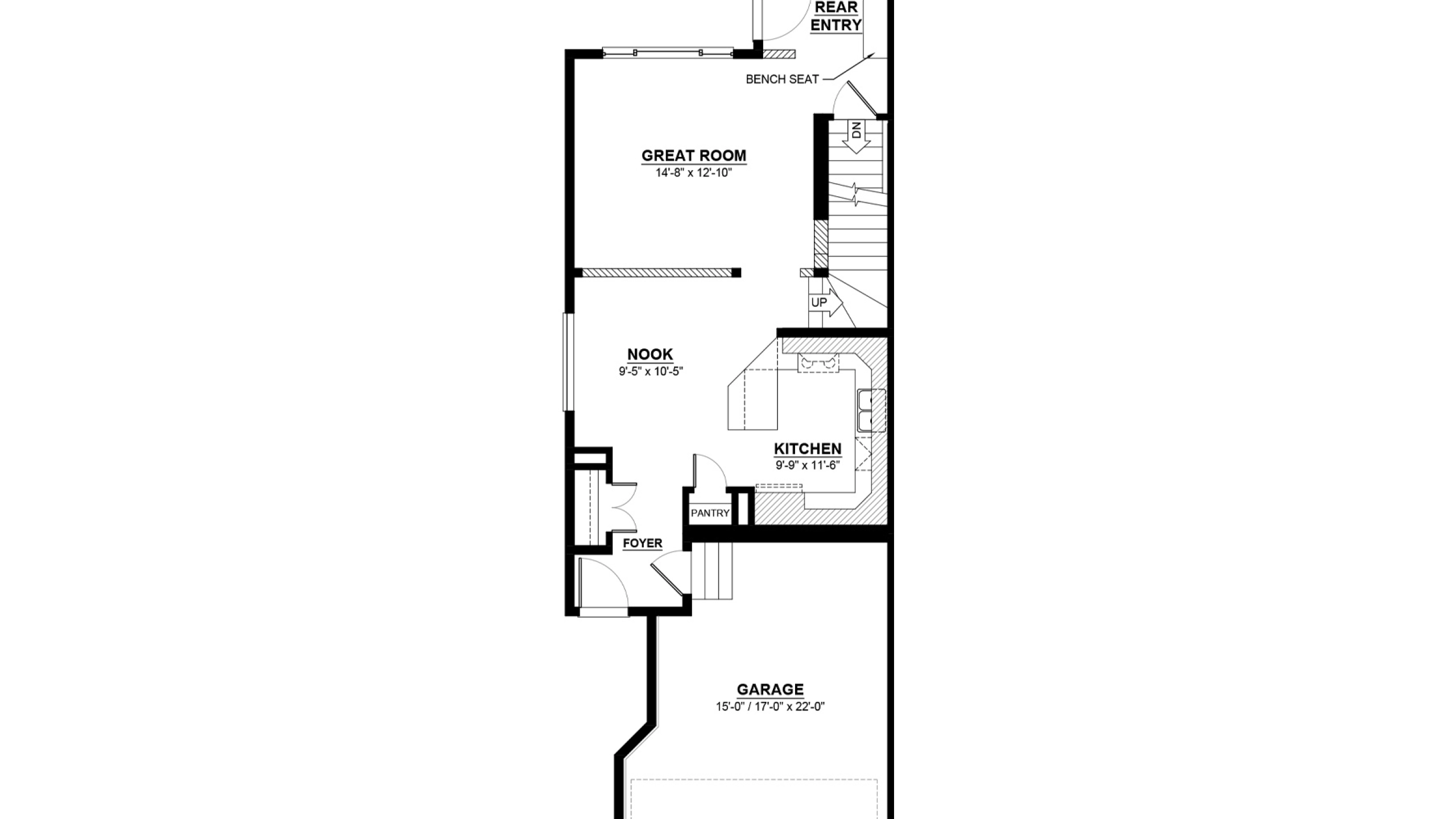
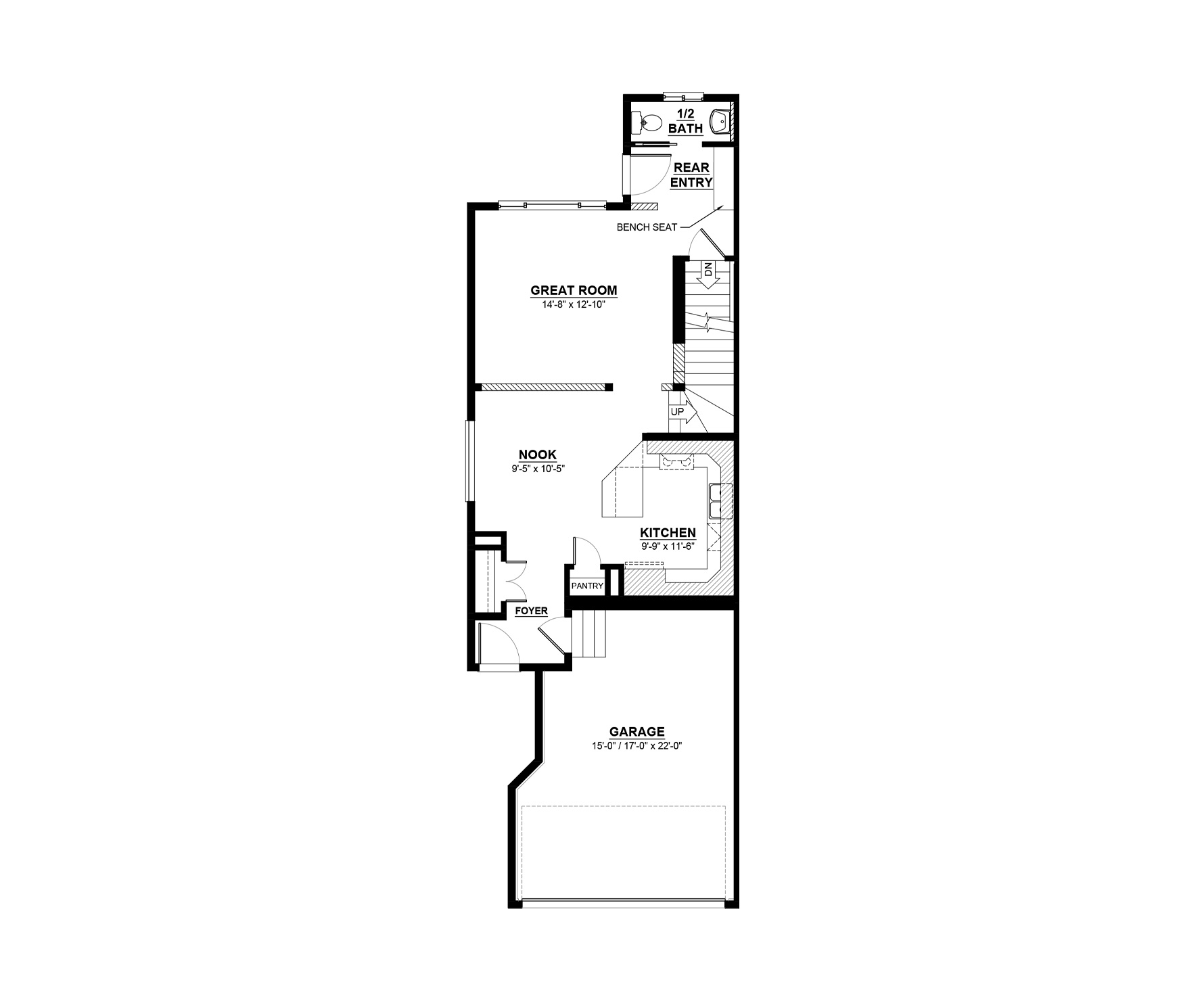
The Avalon-d is two-storey 1,498 sq. ft. duplex with 3 bedrooms and 2.5 bathrooms. The foyer is open to both the front entrance and a 2-car tandem attached garage. The modern kitchen features an extended countertop that overlooks a nook are for dining purposes. The great room is an open-concept design for more freedom when decorating. Upstairs has 3 bedrooms, a main bathroom, and an upstairs laundry room for added convenience. The master bedroom has a spacious walk-in closet with an accompanying ensuite. 

Elevations Exterior Styles

Some home models come in a variety of exterior styles to perfectly compliment the communities in which they’re built.

Avalon II-d T1 T2

Actual product may differ slightly from the images, floor plans and renderings shown.

Communities This model is available to build in...

North

Aurora

Subscribe to our newsletter

Treaty One Territory

We acknowledge that the land on which the Daytona Homes Winnipeg office resides is on Treaty One Territory; traditional territory of the Anishinaabeg, Cree, Oji-Cree, Dakota, and Dene Peoples, and on the homeland of the Métis Nation.

© 2026 Daytona Homes. All Rights Reserved

xs