The Focus-z

Home type: Single Family Detached Garage

3 Bed 2.5 Bath 1400 square feet

Home Model

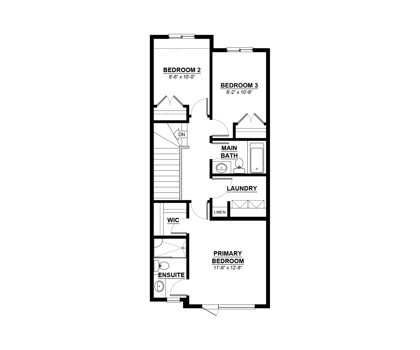
The Focus-z is a 1,400 sq.ft., two-storey home with 3 bedrooms, 2.5 bathrooms and a 9ft. main floor ceiling. Upon entering this home into the foyer, there is a closet for storage then it leads into the great room where an optional fireplace can be selected. The wrap around kitchen is spacious with a pantry and eating bar open to the nook with space for a tech center. The rear entry offer ample space for storage along with closets and a private half bath. The second floor has 3 bedrooms, a laundry room with linen storage and a main bathroom. The Primary bedroom features a walk in closet and airy ensuite.

Elevations Exterior Styles

Some home models come in a variety of exterior styles to perfectly compliment the communities in which they’re built.

Actual product may differ slightly from the images, floor plans and renderings shown.

Move-in Ready These homes are ready and waiting for you

Some home models come in a variety of exterior styles to perfectly compliment the communities in which they’re built.
Community: The Uplands at Riverview
IMMEDIATE POSSESSION

18823 29 Avenue NW

3 Bed 2.5 Bath 1400 square feet

$442,856 Pre-GST. Includes home & lot.

Communities This model is available to build in...

Northeast Edmonton

Crystallina Nera

A new home community defined by dramatic water features and scenic natural surroundings.

West Edmonton

The Uplands at Riverview

Close access to modern amenities and breathtaking nature.

West Edmonton

Ellis Greens

Situated just beyond the southwest side of the city, Ellis Greens is the embodiment of balance.

Southwest Edmonton

Chappelle Gardens

It's time you owned a new home in southwest Edmonton’s finest new community.

Southeast Edmonton

The Orchards at Ellerslie

A naturally beautiful new community defined by fruit trees, colourful blossoms and family fun.

Subscribe to our newsletter

Treaty Six Territory

We acknowledge that the land on which the Daytona Homes Edmonton office resides is on Treaty Six Territory–a traditional meeting ground, gathering place, and travelling route for many indigenous people. We honour and respect the history, languages, ceremonies and culture of the First Nations, Metis and Inuit who call this territory home.

© 2026 Daytona Homes. All Rights Reserved

xs