The Focus-d

Home type: Duplex

3 Bed 2.5 Bath 1400 square feet

Home Model

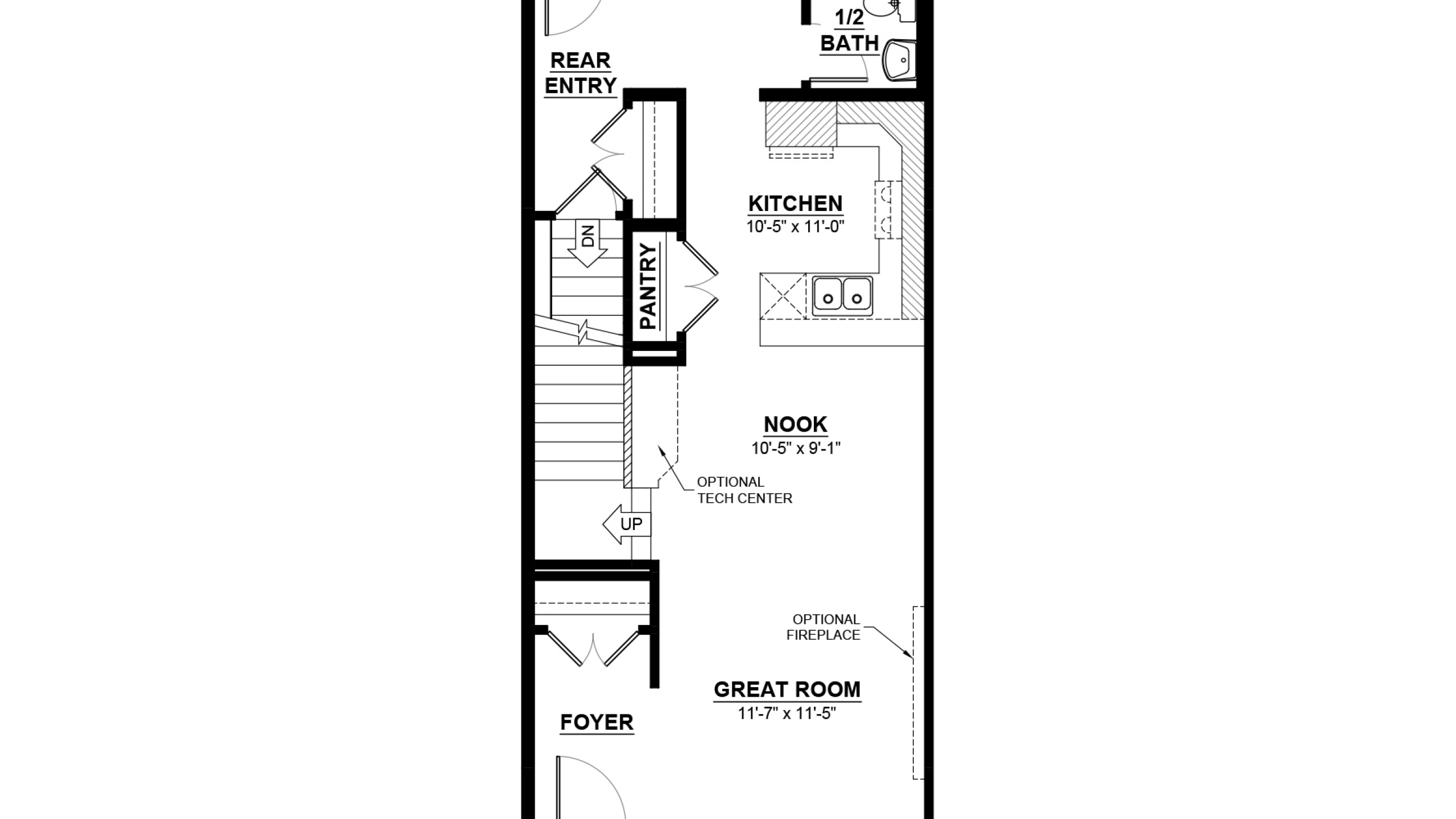
The Focus-d is a 1,400 sq. ft. duplex featuring 3 bedrooms and 2.5 bathrooms. The foyer welcomes you into the home with a closet and leads into the great room with optional fireplace. Center to this main floor is the nook with space for an optional tech center. The kitchen includes a pantry and an extended eating bar for additional hosting space. A half bath sit tucked away behind the kitchen for privacy and there is an additional closet at the rear entry. Two bedrooms sit at the rear of the home upstairs along with a main bathroom. Central to the upper floor there is a full laundry room with a shelf and linen storage. Included in the primary bedroom is a walk-in closet and an ensuite with a window for additional storage.  Options include standard basement development, legal basement suite development with separate side entry, or a garden suite (where permitted).

Elevations Exterior Styles

Some home models come in a variety of exterior styles to perfectly compliment the communities in which they’re built.

Actual product may differ slightly from the images, floor plans and renderings shown.

Communities This model is available to build in...

Southwest Edmonton

Chappelle Gardens

It's time you owned a new home in southwest Edmonton’s finest new community.

Subscribe to our newsletter

Treaty Six Territory

We acknowledge that the land on which the Daytona Homes Edmonton office resides is on Treaty Six Territory–a traditional meeting ground, gathering place, and travelling route for many indigenous people. We honour and respect the history, languages, ceremonies and culture of the First Nations, Metis and Inuit who call this territory home.

© 2026 Daytona Homes. All Rights Reserved

xs