The Silverstone II

The Silverstone II

Home type: Single Family Detached Garage

3 Bed 2.5 Bath 2181 square feet

Home Model

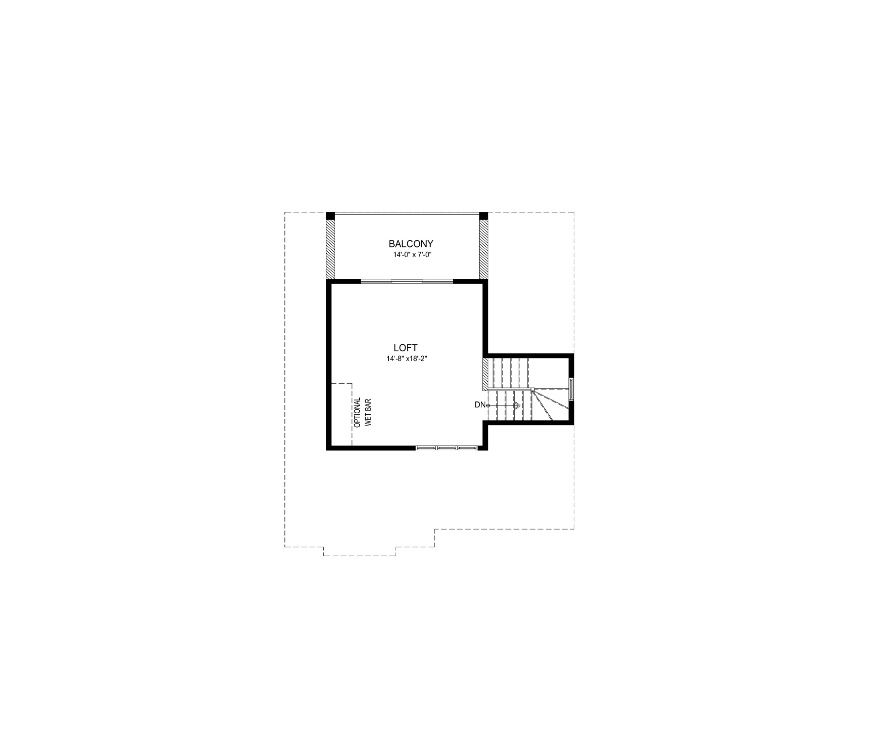
The Silverstone II has a total living space of 2,188 sq.ft. with 3 bedrooms, 2.5 baths, a den and a cozy upper floor Family Room. The foyer of this home gives way to a spacious den with a window to the front of this home and a half bathroom placed perfectly for privacy. On the way to the great room is the full laundry room with ample storage and a sink. Enter the great room with fireplace that is open to the kitchen and dining room. This well-appointed kitchen includes an island with an extended eating bar and a walk-in pantry large enough to add an optional spice kitchen to. The upper floor of this home hosts 2 bedrooms, a family room, a main bathroom and a primary bedroom. Included in the Primary bedroom is a large walk-in closet and ensuite with a free-standing oval tub, double sinks, a water closet and shower. Create more living space by adding an optional side entry and/or developing the optional basement.

Elevations Exterior Styles

Some home models come in a variety of exterior styles to perfectly compliment the communities in which they’re built.

Silverstone II P

Silverstone II R

Silverstone II F

Actual product may differ slightly from the images, floor plans and renderings shown.

Move-in Ready These homes are ready and waiting for you

Some home models come in a variety of exterior styles to perfectly compliment the communities in which they’re built.
Community: Harmony

The Silverstone II R

3 Bed 2.5 Bath 2188 square feet

Home Type: Carriage Suite over Detached Garage

$952,286 Pre-GST. Includes home & lot.

Community: Harmony

The Silverstone II R

3 Bed 2.5 Bath 2188 square feet

Home Type: Large Yard, Triple Car Detached Garage, Waterfall Island, Raised Dining Room Ceiling,

$847,524 Pre-GST. Includes home & lot.

Community: Harmony

The Silverstone II R

3 Bed 2.5 Bath 2188 square feet

Home Type: Triple Car Garage, Railing, Tiled Ensuite Shower with Two Glass Sides

$809,429 Pre-GST. Includes home & lot.

Community: Harmony

The Silverstone II P

3 Bed 2.5 Bath 2181 square feet

Home Type: Triple Car Detached Garage, Tiled Ensuite Shower

$857,048 Pre-GST. Includes home & lot.

Communities This model is available to build in...

Springbank

Harmony

2024 Bild Calgary award Winner: Community of the Year- Calgary Region

Subscribe to our newsletter

Treaty Seven Territory

Daytona Homes Calgary is located on the traditional territories of First Nations Peoples of Treaty 7. The Treaty 7 Lands in Southern Alberta are home to the Kainai Nation, Piikani Nation, Siksika Nation, Tsuu T’ina Nation, and the Bearspaw, Chiniki and Wesley (Stoney- Nakoda) Nations. Calgary is also home to Region 3 of the Métis Nation of Alberta.

© 2026 Daytona Homes. All Rights Reserved

xs