The Silverstone

The Silverstone

Home type: Single Family Detached Garage

3 Bed 2.5 Bath 2515 square feet

Home Model

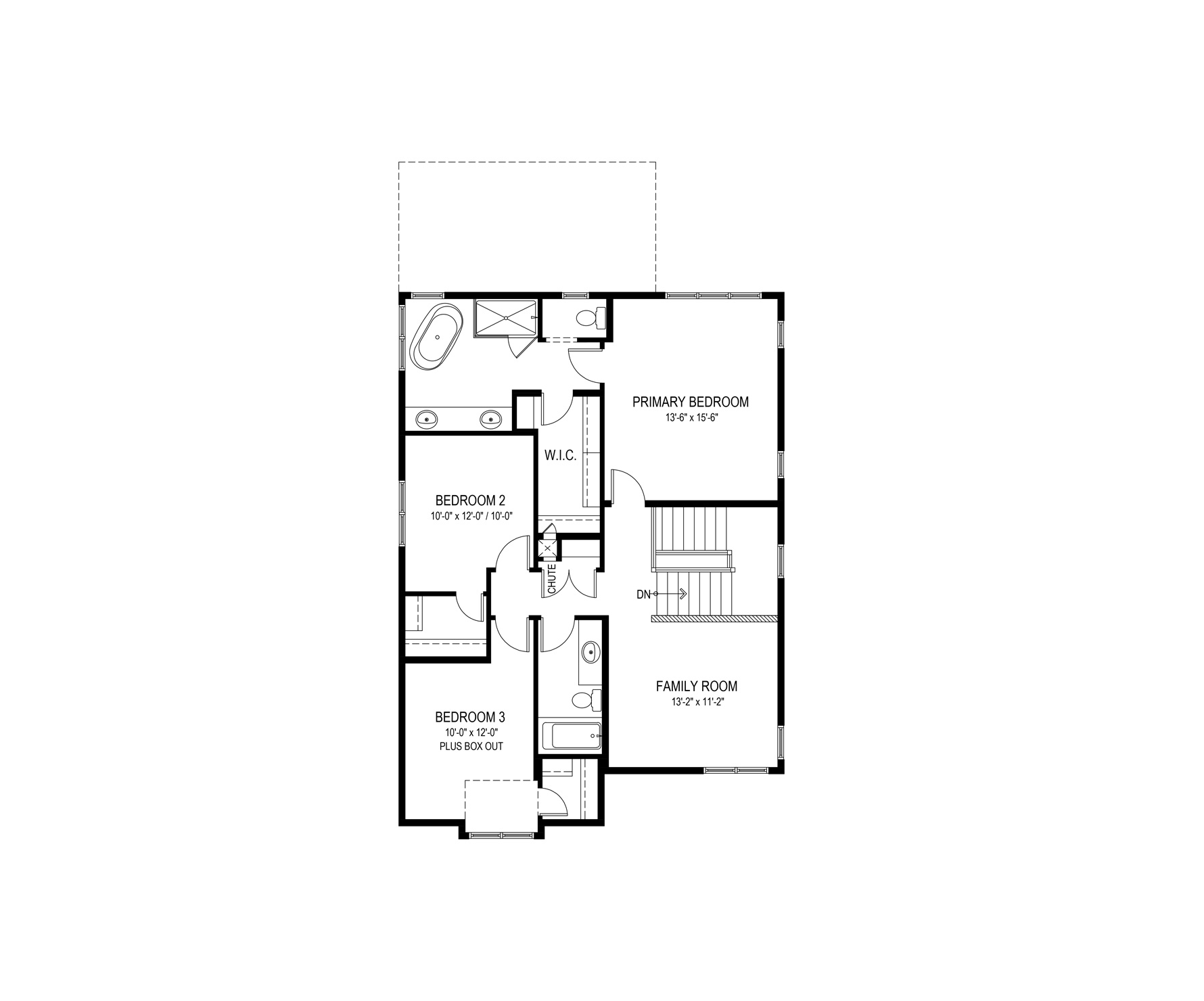
The Silverstone has a total living space of 2,521 sq.ft., with 3 bedrooms, 2.5 baths, a den and a cozy upper floor family room. The foyer of this home gives way to a spacious den with a window to the front of this home and a half bathroom placed perfectly for privacy. On the way to the great room is the full laundry room with ample storage. Enter the great room with fireplace that is open to the kitchen and dining room. This well-appointed kitchen includes an island with an extended eating bar and a walk-in pantry large enough to add an optional spice kitchen. The upper floor of this home hosts 2 bedrooms, a Family Room, a main bathroom, and a Primary Bedroom. Included in the Primary bedroom is a large walk-in closet and ensuite with a corner, free standing oval tub, double sinks, a water closet and shower. Create more living space by adding an optional side entry and/or developing the optional basement.

Elevations Exterior Styles

Some home models come in a variety of exterior styles to perfectly compliment the communities in which they’re built.

Silverstone P

Silverstone R

Silverstone F

Actual product may differ slightly from the images, floor plans and renderings shown.

Move-in Ready These homes are ready and waiting for you

Some home models come in a variety of exterior styles to perfectly compliment the communities in which they’re built.
Community: Harmony

The Silverstone F

3 Bed 2.5 Bath 2521 square feet

Home Type: Triple Car Detached Garage, Rear Deck, Developed Stairs to Basement, Tiled Ensuite Shower

$885,619 Pre-GST. Includes home & lot.

Community: Harmony

The Silverstone R

3 Bed 2.5 Bath 2521 square feet

Home Type: Triple Car Detached Garage, Rear Deck, Main Floor Den, Developed Stair to Basement, Tiled Ensuite Shower

$885,619 Pre-GST. Includes home & lot.

Community: Harmony

The Silverstone F

3 Bed 2.5 Bath 2521 square feet

Home Type: Large Yard, Triple Car Detached Garage, Waterfall Island, Tiled Ensuite Shower

$904,667 Pre-GST. Includes home & lot.

Community: Harmony

The Silverstone P

3 Bed 2.5 Bath 2515 square feet

Home Type: Large Yard, Triple Car Detached Garage, Main Floor Den, Tiled Ensuite Shower

$895,143 Pre-GST. Includes home & lot.

Communities This model is available to build in...

Springbank

Harmony

2024 Bild Calgary award Winner: Community of the Year- Calgary Region

Subscribe to our newsletter

Treaty Seven Territory

Daytona Homes Calgary is located on the traditional territories of First Nations Peoples of Treaty 7. The Treaty 7 Lands in Southern Alberta are home to the Kainai Nation, Piikani Nation, Siksika Nation, Tsuu T’ina Nation, and the Bearspaw, Chiniki and Wesley (Stoney- Nakoda) Nations. Calgary is also home to Region 3 of the Métis Nation of Alberta.

© 2026 Daytona Homes. All Rights Reserved

xs