The Aviator-z III

The Aviator-z III

Home type: Single Family Attached Garage

3 Bed 2.5 Bath 2143 square feet

Home Model

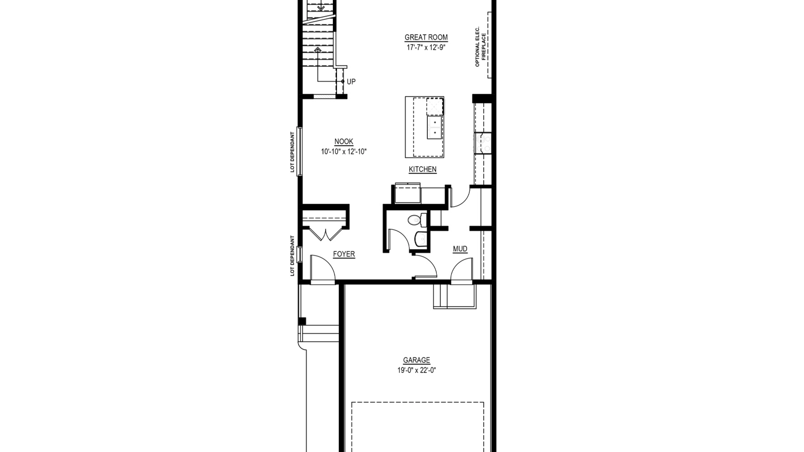
The Aviator-z is a 2,143 sq. ft. home with 3 bedrooms and 2.5 baths. It is available in available in Craftsman, Colonial and Prairie designs. The main floor has a 9 ft. ceiling. The foyer leads into a combined, open-concept great room and nook area for dining and entertaining purposes. The modern kitchen has a built-in microwave and a large walk-in pantry for extra space. The main floor also includes a ½ bath and an attached 2-car garage. The Upper floor includes 3 bedrooms , a central bonus room and main bathroom with double sinks. For added convenience, the laundry room includes cabinets with a counter tops, a hanging rail and an extra linen closet. The Primary bedroom has a sizable walk-through closet and an accompanying ensuite with double sinks, a soaker tub and a stand alone shower. The Aviator also has an optional dropped great room, basement development or a basement suite with optional rear entry to add an income suite to your home.

Elevations Exterior Styles

Some home models come in a variety of exterior styles to perfectly compliment the communities in which they’re built.

Aviator-z III E

Aviator-z III B

Actual product may differ slightly from the images, floor plans and renderings shown.

Move-in Ready These homes are ready and waiting for you

Some home models come in a variety of exterior styles to perfectly compliment the communities in which they’re built.
Community: Walden

The Aviator-z III E

3 Bed 2.5 Bath 2143 square feet

Home Type: Walkout Basement onto Greenspace, 9 Foot Foundation, Rear Deck, Tiled Ensuite Shower

$714,190 Pre-GST. Includes home & lot.

Communities This model is available to build in...

Southeast

Walden

Last Chance in Walden! Come explore our final phase.

Subscribe to our newsletter

Treaty Seven Territory

Daytona Homes Calgary is located on the traditional territories of First Nations Peoples of Treaty 7. The Treaty 7 Lands in Southern Alberta are home to the Kainai Nation, Piikani Nation, Siksika Nation, Tsuu T’ina Nation, and the Bearspaw, Chiniki and Wesley (Stoney- Nakoda) Nations. Calgary is also home to Region 3 of the Métis Nation of Alberta.

© 2026 Daytona Homes. All Rights Reserved

xs