The Canyon-z CF

The Canyon-z CF

Home type: Single Family Attached Garage

3 Bed 2.5 Bath 2090 square feet

Priced at
$723,714

Pre-GST. Includes home & lot.

*Prices subject to change without notice. E.&O.E.

Possession Date Immediate

Included Features

  • 9' Foundation
  • Fireplace
  • Main Floor Tech Space
  • Oversized Garage
  • Side Entry
  • Tiled Ensuite Shower
  • West Facing Backyard

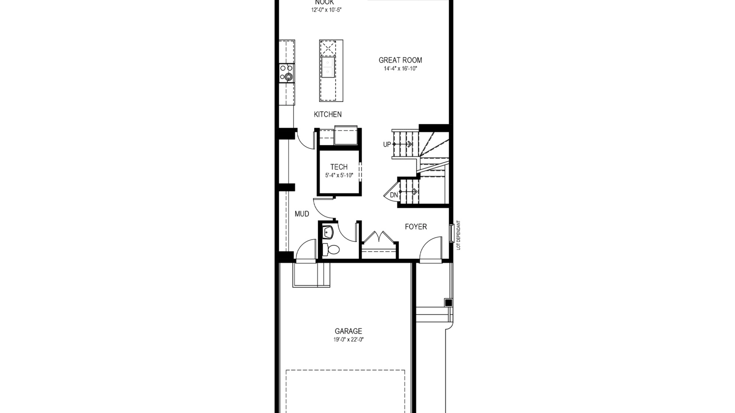
The Canyon-z is a 2,090 square foot single family home with front attached garage with 3 bedrooms, a bonus room, tech space and 2.5 bathrooms. The main floor has 9 ft. ceilings throughout, a private half bathroom tucked out of the way and a cozy tech space. The main floor central space hosts the nook, great room and kitchen which includes an island with an extended eating bar and a walk-through pantry into the mudroom and garage access. Upstairs you will find a central bonus room, two bedrooms, a laundry room with built-ins and main bathroom at the front of the home. The Primary Bedroom, at the rear of the home, includes a walk-in closet and ensuite featuring dual sinks, a water closet, and a free-standing oval tub. Options include basement development, legal basement suite and separate side entry.

Actual product may differ slightly from the images, floor plans and renderings shown.

Floorplans & Photos
Community

Rangeview

BILDCR Winner of Community of the Year!

Explore the community

More homes in the area

Move-in Ready
Community: Rangeview

The Ranger-z MF

3 Bed 2.5 Bath 1936 square feet

Home Type: West Facing Backyard, Legal Basement Suite, 9 Foot Foundation, 200 AMP, Fireplace, Tiled Ensuite Shower

$733,238 Pre-GST. Includes home & lot.

Community: Rangeview

The Austyn-z II MF

3 Bed 2.5 Bath 2375 square feet

Home Type: Corner Lot, 9 Foot Foundation, Optional Side Entry, Main Floor Den, Optional Fourth Bedroom Second Floor

$742,762 Pre-GST. Includes home & lot.

Community: Rangeview

The Romeo-z CF

3 Bed 2.5 Bath 1824 square feet

Home Type: 9 Foot Foundation, Oversized Garage, Optional Side Entry, Fireplace

$628,476 Pre-GST. Includes home & lot.

Promos & News

2025 NEW MODEL LINEUP

Explore our newest models for 2025 and our offers!

Sales Consultants

Sales consultant Sandi Newell

403.618.8948 sandisellsdaytonahomesyyc

About Sandi

During more than 20 years of industry experience in and around Calgary, I have successfully sold multi family, custom and single family homes. Since joining Daytona Homes in 2021, my successes have been recognized with customer service and sales awards. My approach in working with potential clients to find a new home that best suits their needs is both honest and collaborative, I love that every client is unique in their needs and wants so the learning never ends.  The greatest reward is to be there on possession day to welcome the family to their new home.

Communities

Languages

  • English

Subscribe to our newsletter

Treaty Seven Territory

Daytona Homes Calgary is located on the traditional territories of First Nations Peoples of Treaty 7. The Treaty 7 Lands in Southern Alberta are home to the Kainai Nation, Piikani Nation, Siksika Nation, Tsuu T’ina Nation, and the Bearspaw, Chiniki and Wesley (Stoney- Nakoda) Nations. Calgary is also home to Region 3 of the Métis Nation of Alberta.

© 2026 Daytona Homes. All Rights Reserved